上海疆能电气有限公司是集科研、制造、营销于一体的高科技新型化产业公司。公司从创办起始,就以产品的设计为主导,主要研发、生产35kV及以下:永磁真空断路器、看门狗分界开关、智能真空断路器、负荷开关、隔离开关等;产品广泛应用于各等级电网、风能发电厂、太阳能发电厂、核电、水电等领域...
了解详情巨控电气有限公司建立完善的市场营销体系,实施“品牌营销和网络营销”相结全的发展战略,产品畅销全国各地,深受广在客服的信赖和支持,并为众多重点项目所选用。...
了解详情巨控电气有限公司自成立以来,始终本着“科技领先、质量至上、持续改进、顾客至上”的质量方针,诚信经营。用户使用我厂产品出现质量问题,在接到客户反馈24小时之内给予答复,服务人员将在48小时内解决问题,本销售部负责包退、包换,直至客户满意...
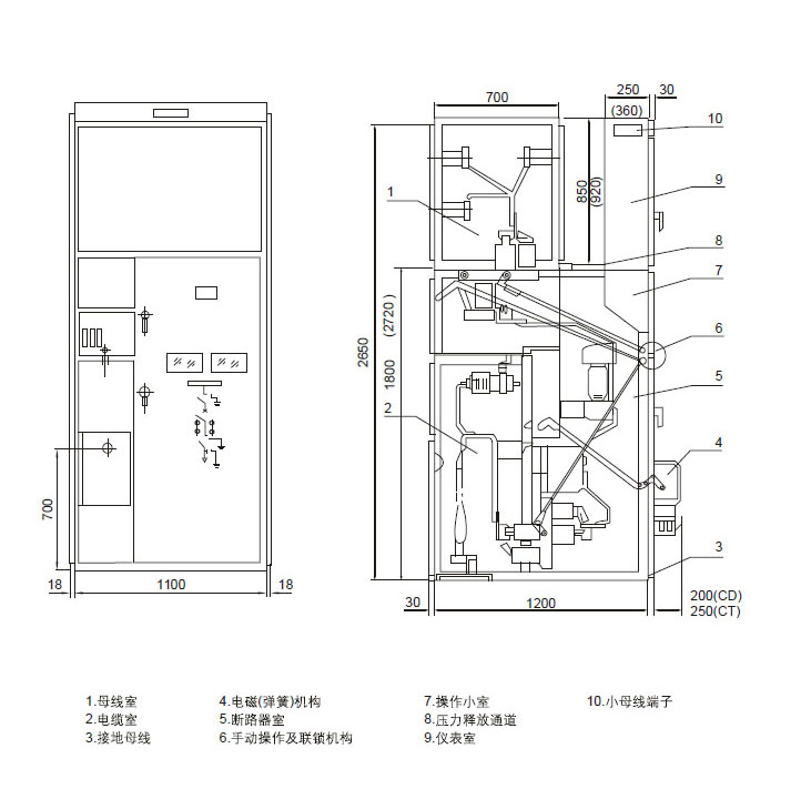
了解详情本开关柜的主开关采用ZN28A-10系列真空断路器,配用CD10系列电磁和CT8系列弹簧操动机构,隔离开关采用GN30-10旋转式隔离开关和GN22-10大电流隔离开关系列产品。
用途
XGN2-10箱型固定式金属封闭开关设备是由西安高压电器研究所开发和研制的高压成套开关设备。设备所用主要一次元件均属重新设计,与目前主要使用的手车式开关柜和GG-1(A)F型开关柜相比具有较高的绝缘水平和防护等级,内部不采用任何形式的相间和相对地隔板及绝嫁气体,二次回路不采用二次插头(即不管设备在何种状态下,保护和控制回路是始终贯通的);产品用于3-10kV单母线,单母线带旁路系统中作为接受和分配电能的高压成套设备。本产品符合“五防”要求。
产品各项指标符合GB3906《3-35kV交流金属封闭开关》,IEC298技术标准。
使用环境条件
1.环境温度上限+40C下限一25C(户内);
2.海拔高度1000m;(水海拔超过1000m时按DLUT593-1996《高压开关设备的共用订货技术导则》有关规定执行)。
3.相对湿度日平均值不大于95%,月平均值不大于90%;
4.地振烈度不超过8度;
5.没有火灾、爆炸危险、严重污染、化学腐蚀及剧烈振动的场所。
联系电话
13868889777
地址:上海市浦东新区万祥镇宏祥北路83弄1-42号20幢118室
手机:13868889777
网址:Http://www.jiangneng.co