疆能电气有限公司

户外高压隔离开关

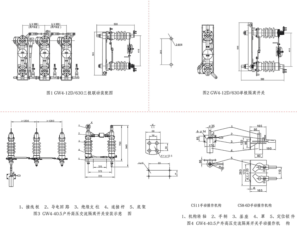
GW4-12(15,40.5,72.5)型户外高压交流隔离开关

GW4-12(15,40.5,72.5)型户外高压交流隔离开关

GW4-12(15,40.5,72.5)型户外高压交流隔离开关

品牌:疆能电气
类别:户外高压隔离开关

立即咨询立即咨询
热线电话 400-600-2722
适用范围
GW4-12(15,40.5,72.5)系列户外高压交流隔离开关适用于装置在户外交流50Hz、额定电压分别为12kV和40.5kV的电力系统中,供线路在有电压、无负载时作为开合电路之用。产品符合GB1985及其他相关标准的要求。

结构特征
隔离开关由底座、绝缘支柱及导电部分以及操动机构等组成。每极有两个支柱,每个支柱上端各装有导电闸刀,两侧闸刀触头接触处在两支柱的中间部位。支柱的下端各装有轴承套,在操动机构的带动下,可使闸刀作水平旋转90°从而达到分合闸之要求。
隔离开关为单极型,也可通过连杆将三极连成能够联动的三极型式。配用CS11型或CS8-6D型手动机构操作。
其中CS17用于带双接地装置的隔离开关。(可据需要配电动机构)。
本隔离开关结构合理,操动灵活自如;可单极,也可三极使用,安装方便;触刀开距大,绝缘安全可靠。
还可根据用户需要,不接地或配装单边接地或双接地均可。

使用环境条件
1、海拔:不超过3000m;
2、周围空气温度上限40℃,下限-40℃;
3、风速不超过35m/s;
4、不得有导电尘埃或化学腐蚀气体以及剧烈振动;
5、没有火灾及爆炸危险的场所;
6、污秽等级不超过三级;
7、地震烈度不超过8度。

联系电话

13868889777

地址:上海市浦东新区万祥镇宏祥北路83弄1-42号20幢118室

手机:13868889777

网址:Http://www.jiangneng.co

COPYRIGHT © 2021 上海疆能电气有限公司 VS1 ZW32 ZW20 FZN25 KYN28 HXGN15 ALL RIGHTS RESERVED 版权所有 浙ICP备12005340号-1 houtai